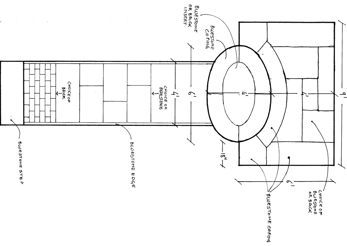
STYLES & DESIGN
The background gained through Art Schools in Florence, Italy and 25 years of hands-on experience in Stone Masonry construction, enables Fabio Bardini to help his clients envision their finished project through a process of schetching, drawing, choice of styles and select a variety of materials directly from the quarries.
We offer design services from detailed designs entailing complete property hardscapes and landscapes to simple sketches for individual indoors and outdoors spaces.
"A rock pile ceases to be a rock pile the moment a single man contemplates it, baring with him the image of a cathedral." Antoine de Saint-Exupery
Our ability to work with a variety of styles, from 15th century European styles, English gardens, Japanese or Modern styles, enables us to offer our Clientele a broad palette.
Visit out PHOTO GALLERY page to view images of our masonry work.
"The best artist has that thought alone which is contained within the marble shell. The sculptor's hand can only break the spell to free the figures slumbering within the stone." Michelangelo



















